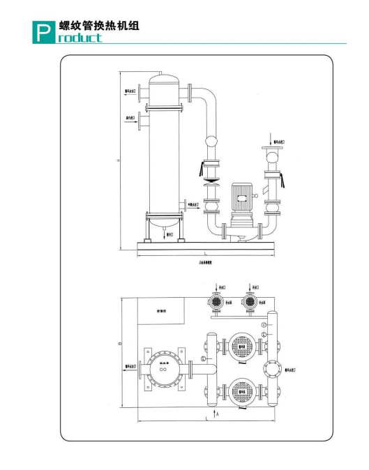
螺旋螺紋管式換熱器是近年來推出的一種新型高效節能的換熱設備,它在設計上完全突破了傳統管殼式換熱器的設計思路,從材料選擇到結構形式、外形體積等方面與傳統管殼式換熱器相比均有大幅度變化,多項技術創新使該換熱器從外觀到性能等各方面明顯超越了傳統管殼式換熱器,改變了傳統換熱器結構簡單、體積龐大、外形粗糙、效率低下的特點,是傳統換熱器的更新換代產品。
(一)螺旋螺紋管換熱器熱效率高,更加節省能量(蒸汽)
內部獨特的反向纏繞、螺旋上升的盤管結構,以逆流方式換熱,使蒸汽在換熱管束中得以充分冷凝,無須經過二次換熱,故可以節省大量蒸汽;
(二)螺旋螺紋管換熱器為全不銹鋼焊接,耐高溫高壓
由于螺旋螺紋管換熱器的換熱管束和殼體全部采用不銹鋼材質,具有統一的膨脹系數,其最高承壓1.6MPa,最高耐溫400℃,不會由于壓力和溫度不穩定而引起換熱器的變形;無需減溫減壓裝置。
(三)螺旋螺紋管換熱器結構緊湊,安裝方便,占地面積小
螺旋螺紋管換熱器體積小,節省基建投資;重量輕,便于安裝,設備可直接與管道相連,降低了安裝費用。
(四)螺旋螺紋管換熱器使用壽命長
螺旋螺紋管換熱器利用歐文(OWEN)湍流抖振頻率準則原理,采用換熱管束最小間隙設計,有效消除了湍流抖振現象,延長了換熱器的使用壽命。
(五)螺旋螺紋管換熱器結垢傾向低,維護費用低
螺旋螺紋管換熱器獨特的內部結構、獨特的表面處理工藝以及兩側介質的逆流換熱,在提高綜合傳熱系數的同時保證了換熱器具有自潔功能,結垢傾向低。可采用化學除垢的方法清洗換熱器即可,省時、省力、費用低、效果好。
(六)螺旋螺紋管換熱器節能環保
螺旋螺紋管換熱器熱媒走管程,冷媒走殼程,換熱器殼體無需保溫








同等質量比價格,同等價格比服務
全國銷售熱線:155-6442-0017 您也可以發郵件至:dzjinfei@163.com
業務手機專線:0534-2355777 QQ:597752739
?
品質放心:本司所有產品均經過反復技術測試,所有產品均可出示原廠證明及檢測報告
包裝細心:我們視每一件產品如寶貝,精心包裝,層層保護,只為貨物能安全完好地送達
服務貼心:在與客戶交流的過程中,我們始終保持一顆真誠的心,因為:態度決定一切
售后安心:承諾質量問題一年包換為的是讓客戶放心,長期質量跟蹤卻可以讓客戶安心
?
Q:你們在外省有經銷或代理嗎?我們要怎么訂貨?
A:不好意思,目前我們在外省暫無經銷或代理商,如果您要訂貨,可與我們廠家直接聯系,訂貨熱線:0534-2355777 15564420017;
Q:我們在當地看不到你們的樣品,怎么讓我們相信你們?
A:我們的產品已暢銷全國各地,客戶可向銷售客服查詢當地用過我們產品的客戶;另外您也可以先訂樣品再決定是否合作;
Q:你們有什么優勢?
A:我們是專業生產消防通風的廠家,十分注重產品的細節與結構,并依托強大的產品研發實力,不斷創新和努力,致力于為客戶提供更優質的產品和更優良的服務。在工程方面目服務過的品牌有:大連地鐵,廣州新世紀,吉林制藥,哈爾濱鼎立消防有限公司,濰坊世紀大廈,浙江省體育中心,廈門高崎機場,西安人民廣場等;
Q:你們的付款方式是怎么樣的?你們如何保證我們付款后能及時發貨?
A:雙方簽訂正式合同后,預付總貨款的50%下單生產,余款出貨前付清。當然,貨做好后我們會及時通知客戶驗貨,如果客戶不方便驗貨的,我們可采用拍照方式與客戶確認,也可以由客戶指定物流托運,我們廠家將貨送到貨運站經確認無誤后再付余款;
Q:你們的訂貨合同是怎么樣的?如何簽?
A:客戶可聯系銷售提供《訂貨合同》范本,我們的合同一般通過傳真的形式,當然也可以通過快遞的形式。
德州金霏空調設備
電話:0534-2355777 155-6442-0017
Email:dzjinfei@163.com
地址:山東省德州市德城區